2919 Faith Ct, Cody, WY 82414
- $91,000
Details
Updated on February 27, 2026 at 5:33 pm-
Property ID 10022446
-
Price $91,000
-
Land Area .31 acres
-
Property Type Vacant Land
-
Property Status For Sale
Additional details
-
Utilities City utilities and TCT internet at the lot line
Description
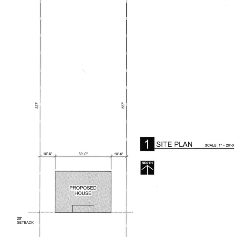
Enjoy incredible Heart Mountain views from this great in-town building site. The lot is 60’ x 227’, allowing plenty of room to build a home, shop, vacation rental, or other investment project. It is zoned R3, permitting a multitude of uses; no HOA fees! Brand new connections for city utilities and TCT internet to the lot line. The hard work is already done and is ready to build. See pictures for one example of a house plan that would fit well on the lot.
Address
Open on Google Maps-
Address: 2919 Faith Ct
-
City: Cody
-
State/county: WY/Park
-
Zip/Postal Code: 82414
-
Area: Cody - City
-
Country: United States
Mortgage Calculator
Monthly
-
Down Payment
-
Loan Amount
-
Monthly Mortgage Payment
-
Property Tax
-
Home Insurance
-
PMI
-
Monthly HOA Fees
Similar Listings
92 Big Creek Dr
- $108,000
Lot 4 Callen Dr – Cody, WY
- $345,000
Meadowlark Meadows Major Subdivision – Vacant Lots
- see description for lot prices






